Sandrine EVENE Négociatrice
Vendu

Maison 3 pièce(s) 2 chambre(s) 70.4 m²

Montauroux (83440)
345 000 € Référence 521-SE-E

A propos de ce bien

cette villa neuve (date de livraison juillet 2022) saura vous séduire par la qualité de son environnement et de ses prestations

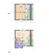
elle est composée au rez de chaussée d'une cuisine équipée et ouverte sur une  belle piéce à vivre donnant sur le jardin, d'une buanderie et d'un WC

au premier niveau vous trouverez deux chambres (12 & 13M²) une salle d'eau avec douche à l'italienne et WC séparé.

Devant la maison un emplacement pour deux vehicules et un deux roues est prévu

la villa sera livrée avec les extérieurs cloturés et arborés

Sa situation à l'entrée du village de Montauroux vous permet de rejoindre les axes routiers très rapidement, tout en profitant des plaisirs de la campagne et d'un très joli village.

Caractéristiques de ce bien

  • Surface 70,40 m²
  • carrez 71,40 m²
  • terrain 168 m²
  • séjour 21,40 m²
  • 2 chambre(s)
  • 1 salle(s) de bain
  • 1 salle(s) d'eau
  • construit en 2022
  • cuisine américaine (semi-équipée)
  • Chauffage individuel : air pulsé (climatisation)
  • 2 parking(s)
  • exposition Sud-Ouest
  • 1 côté(s) mitoyen(s)
  • 1 niveau(x)
  • vue Jardin

Diagnostics énergétiques

DPE
GES
DPE vierge

Informations financières

Prix de vente 345 000 € Les honoraires d'agence seront intégralement à la charge du vendeur

Informations de copropriété

Copropriété Oui
Lot n° 12
Nombre de lots 15
Plan de sauvegarde Non

Autour du bien

  • Commerces et santé
  • Loisirs
  • Ecoles
  • Transports
  • Pratique

Calcul des mensualités

* Champs obligatoires